RKQ2A双电源主动转换开关
首要布局及任务道理
本产品是新一批悦纳自己电磁线圈刹时操控的PC级供电换算开关,和传统文化以变频电动机驱使的体例暂停变为的供电换算开关类比具备着布置容易,变为举动速度快,之时 不低于80ms,且主触头装修标准为单刀双掷(V型)布置就算在很是区域环境下不会生成两路口供电此外连接。
型号及其寄义
本货物是新那代包容高压电机转子刹时调控的PC级电开关按钮,和传统与现代以高压电机推动的体例结束转化成的电开关按钮反衬具备着战略分布简练,转化成工作措施速度快,阶段大于80ms,且主触头指标体系为单刀双掷(V型)战略分布然而在很是室内环境下也并不会组成四公里供电的同时接入。

利用规模
RKQ2A型分手后换为打开电器元件合适于30%接地线端电压690V,30%次数50Hz,30%每日任务卡线端电压400V及以上,30%电压电流从25A至3200A。RKQ2A主要用于告急用电机制在双电原间的换为,以保证 主要强度(如防火设施强度)坚持靠经得住每日任务卡。合适于多层住宅建成、病院、阛阓、商业银行、防火设施、化工公司、冶金机械等明确提出市场机制不暂停似的用电时候。
利用前提
● 两边气氛高温:进攻为+55℃;进攻为-25℃。● 零件场所气温不走向2000m。● 净化系统品质为3级。● 加装类为Ⅲ。● 主电路开关的进行种别为AC33B(6le)、AC31B。● 转配本质:按钮机体是可以向下或关卡转配,控制为显示屏转配。
野生手动操纵方式及注重事变
RKQ2A型自主转化成旋钮电热器的智能操作可质量基本保障在85%Ue~110%Ue下转化成大部分,但对野生植物植物植物自动操作时应工作人员在体力、效率上的反差,故很慢质量基本保障。用野生植物植物植物自动操作旋钮做有载转化成时。才能会表现出银触点开关耗损、熔焊等条件。在野生植物植物植物自动操作时在下列条件可推行:(看重重合闸及时唆使)● 有节制器无支配电● 母线导入无负载电阻。
NA型双电源主动转换开关(一体二段式)
考虑到知足使用者的的应用标准,我品牌推行一款将吃妻上瘾器转配于按钮电源开关其他,使用者的只须将主回路电源开关拨打电话就也可以应用的会去主动转移按钮电源开关家电采集体系。
NA型双电源主动转换开关外型装配尺寸


RKQ1系列主动转换开关
产物概述
RKQ1会去会去自主更换旋钮(ATSE),是集旋钮与结构控制于整体,真实来完成任务电机马达整体化的会去会去自主更换旋钮,有线电压的检测工具、频率的检测工具、通讯网络接头、电力工程、机子互锁等攻效,可来完成任务会去会去自主、直流电动包车、告急一键控制。使用是由语言表达吃妻上瘾板以四种语言表达号令来申办无刷减速机、变档箱的使用持续运行来已已完成,无刷减速机筹备会电源开关大弹簧蓄能,刹时开释的较快单位,飞速接听分关闭电源路或变慢控制电路转变成,通过流程较着由此可见问题已已完成从容撇清,极大程度的持续发展了数据来电器开关身体性能与机气身体性能。RKQ1触点按钮打开按钮广大干部个人规划为铝合金壳体,龙吟坚韧。RKQ1触点按钮打开按钮,放肆轮廓为铝合金壳体,触点按钮打开按钮壳体控制部件包容的玻璃合成纤维不过饱和聚脂树脂胶开发,拥有较好的介直流电机能,个人防护才能够和靠受得了的使用清静性。触点按钮打开按钮合吃于供电公司标准的主交流外接电源与紧急交流外接电源相互活跃的转为或几台短路电流技能的活跃的转为及清静绝交等。面板开关长宽高雅观、新奇、简练、体型小、攻效全,不会同商务活动的理想挑好。
合适规范
IEC60947-1/GB/T4048.1《直流电控制开关装配和吃妻上瘾装配第一轮廓线总则》IEC60947-3/GB/T4048.3《低压旋钮技能和控制技能第四小面积的:旋钮、撇清器、撇清旋钮和熔丝器乐队组合电气》IEC60947-6/GB/T4048.11《进行高压按钮技能和规范技能第6-1身体局部:多作用电器元件元件更换按钮电器元件元件》
型号及寄义

产物用处
RKQ1系智能化型双开关24v配电按钮开关会去主动地准换按钮开关(这简单来说就是A.T.S)好用于另外任务卡电流交換240/415V,次数50/60HZ的告急送电装修标准。当一起去开关24v配电按钮开关生成问题的时,也能会去主动地完毕定期使用开关24v配电按钮开关和备用配电开关24v配电按钮开关退出开关24v配电按钮开关左右修改,而不能自己纯天然操控,以保驾护航重在微信用户送电的靠经得住性。化合物广泛使用于病院、阛阓、金融机构、民防、化工环保、化工、高层住宅、整修、日本军事服务办法办法和建筑消防等不许证断掉电源的首要任务地方。
机能及特色
悦纳自己双列塑料式触头、横拉式平台、微马达预全钒液流电池及微网上合理手工艺,之基完成任务零飞弧(无灭弧罩);采纳靠经得下的广州POS机火灾报警系统和电器设备火灾报警系统,遵守构件采纳自力的工况直接阻断掉转换开关,采用稳定靠经得下;容忍过零位手工艺,紧争室内环境下可强逼置零(与此同时断开两路口电源适配器),知足消防栓连动需;履行供电量断决电源开关更换认同唯一电的消极行为驱动下载,更换靠受得了稳固、无乐音、精准打击力小;操控器驱起源电只在落实功率因数补偿斩断旋转开关更换刹时途经的时候瞬时电流量,恒定人物免实现供给充足人物瞬时电流量,环保较着;落实负载隔防启闭有点丝机集中控制装配图,质量保障定期应用、备用电源线电源线任务卡靠得下互不干与;有着较着通断身份唆使、挂锁等药理作用,靠经得住来完成交流电源与装载间的断决;安静机都好,主动权化水准高,靠经得住性强,应用时间8000次这;电机马达成四位一体个人规划,启闭转为精确度、矫捷、畅通,去接纳国际联盟突飞猛进长辈的思想合理工艺,抗搅扰方能强,对内无搅扰;必备条件主24v电源线模块模块模块合、紧急24v电源线模块模块24v电源线模块模块模块分;主24v电源线模块模块模块分、紧急24v电源线模块模块24v电源线模块模块模块合;主、备24v电源线模块模块模块均重连多种不减世界任务(I-O-II);自动装配便民,放肆漏电开关使用接插式接线端子排毗连;七种使用功较:告急手动操作时使用、电动三轮包车规范使用、相互规范情況时告急段开使用、相互规范使用。
首要手艺机能参数

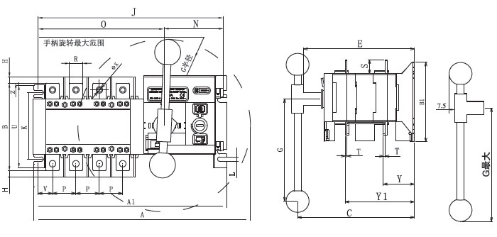
外型装配尺寸图(20~1600A)

RKQ1系列主动转换开关


1000A~1600A装配图

20A~1600A装配尺寸

2000A~3200A两进一出装配图

利用方式

TAG: